メインステージ富士見台
up
406 1LDK 15.9万
更新日:2026-04-23
- 賃料
-
15.9万円
- マンション
- 間取
-
1LDK
- 共益費・管理費
- 20,000円
- 敷金
- 0.0ヶ月
- 礼金
- 0.0ヶ月
|
|
|
|
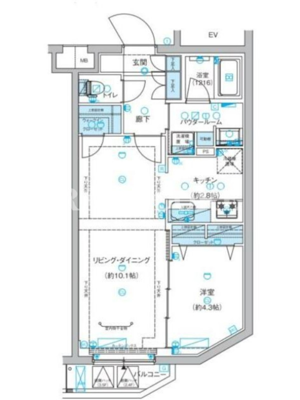
間取り図
物件画像
メインステージ富士見台 406 へのお問い合せはゼロヘヤまで
初期費用
| 家賃 | 敷金 | 礼金 | 仲介手数料 | ||
|---|---|---|---|---|---|
| 15.9万 | 0.0ヶ月 | 0.0ヶ月 | 0.0ヶ月 | ||
|
※1.上記の初期費用には火災保険・カギ交換・保証会社利用料は含まれておりません。 ※2.こちらの初期費用計算は概算となっております。詳しい初期費用に関してはお問い合わせください。 |
|||||
物件詳細
物件説明 |
|---|
|
西武池袋線 「富士見台」
駅から徒歩2分
「 メインステージ富士見台 」の物件ページです。
敷金0.0ヶ月、 南向き、 広さ42.56平米のお部屋です。 「メインステージ富士見台 406」のお部屋です。 西武池袋線 富士見台駅から徒歩2分です。都内で仲介手数料が完全無料の分譲賃貸マンションのお部屋を探すなら「分譲賃貸ライブラリー」 更新日:2026-04-23 |
| 所在地 | 練馬区貫井3-17-3 メインステージ富士見台 |
|---|---|
| 交通 |
西武池袋線「富士見台」駅 徒歩2分 西武池袋線「中村橋」駅 徒歩11分 西武池袋線「練馬高野台」駅 徒歩18分 |
| 築年月 | 2022/2 | 面積 | 42.56m² |
|---|---|---|---|
| 建物階数 | 地上5階 | 部屋階数 | 4階 |
| 部屋/区画番号 | 406 | 総戸/区画数 | 39 |
| 向き | 南 | 建物構造 | RC |
| 間取内容 | 1LDK |
駐車場 | 無し |
| 取引態様 | 仲介 | 引渡/入居時期 | 相談 |
| URL | 「メインステージ富士見台 406」の最新情報はこちら | ||
| 状態 | 空き有り | ||
物件マップ
エラーが発生しました。
※物件掲載内容と現況に相違がある場合は現況を優先と致します。
周辺施設
このページについて
このページは
「 メインステージ富士見台 」 の詳細情報です。
新着情報
-
UP
ガーラ行徳グランドステージ
90,000円
1K
東京メトロ東西線 行徳駅 -
UP
フェリエ大森町
92,000円
1K
京急本線 大森町駅 -
UP
ハーモニーレジデンス東新宿
157,000円 ~ 175,000円
1DK - 1LDK
東京メトロ副都心線 東新宿駅 -
UP
御殿山パークハウス
288,000円
2LDK
JR山手線 大崎駅
新宿の物件
-
UP
フェニックス新宿7丁目
87,000円
1K
東京メトロ副都心線 東新宿駅 -
UP
ガリシア新宿ノース
139,000円 ~ 250,000円
1K
JR中央・総武線 大久保駅 -
UP
パークスフィア牛込神楽坂
225,000円 ~ 460,000円
1LDK - 2SLDK
都営大江戸線 牛込柳町駅 -
UP
エムブランド新宿戸山公園
167,000円
1LDK
東京メトロ副都心線 西早稲田駅
港区の物件
-
UP
ミリアレジデンス赤坂
165,000円 ~ 169,000円
1K
東京メトロ南北線 溜池山王駅 -
UP
オーパスホームズ三田
190,000円
1DK
JR山手線 田町駅 -
UP
アトラス麻布台
750,000円
2LDK
東京メトロ南北線 麻布十番駅 -
UP
グランリビオ芝大門
233,000円 ~ 245,000円
1DK - 1LDK
都営大江戸線 大門駅
中央区の物件
-
UP
パークタワー勝どきミッド
226,000円 ~ 271,000円
1LDK
都営大江戸線 勝どき駅 -
UP
ライオンズフォーシア築地ステーション
160,000円
1DK
東京メトロ日比谷線 築地駅 -
UP
カスタリア茅場町
222,000円 ~ 257,000円
1LDK
東京メトロ日比谷線 茅場町駅 -
UP
ステージグランデ日本橋人形町
157,000円 ~ 280,000円
1K - 1LDK
東京メトロ日比谷線 人形町駅
